Overview

Prime Croydon SDA Investment: $160k+ Income & 5+5 Year Lease
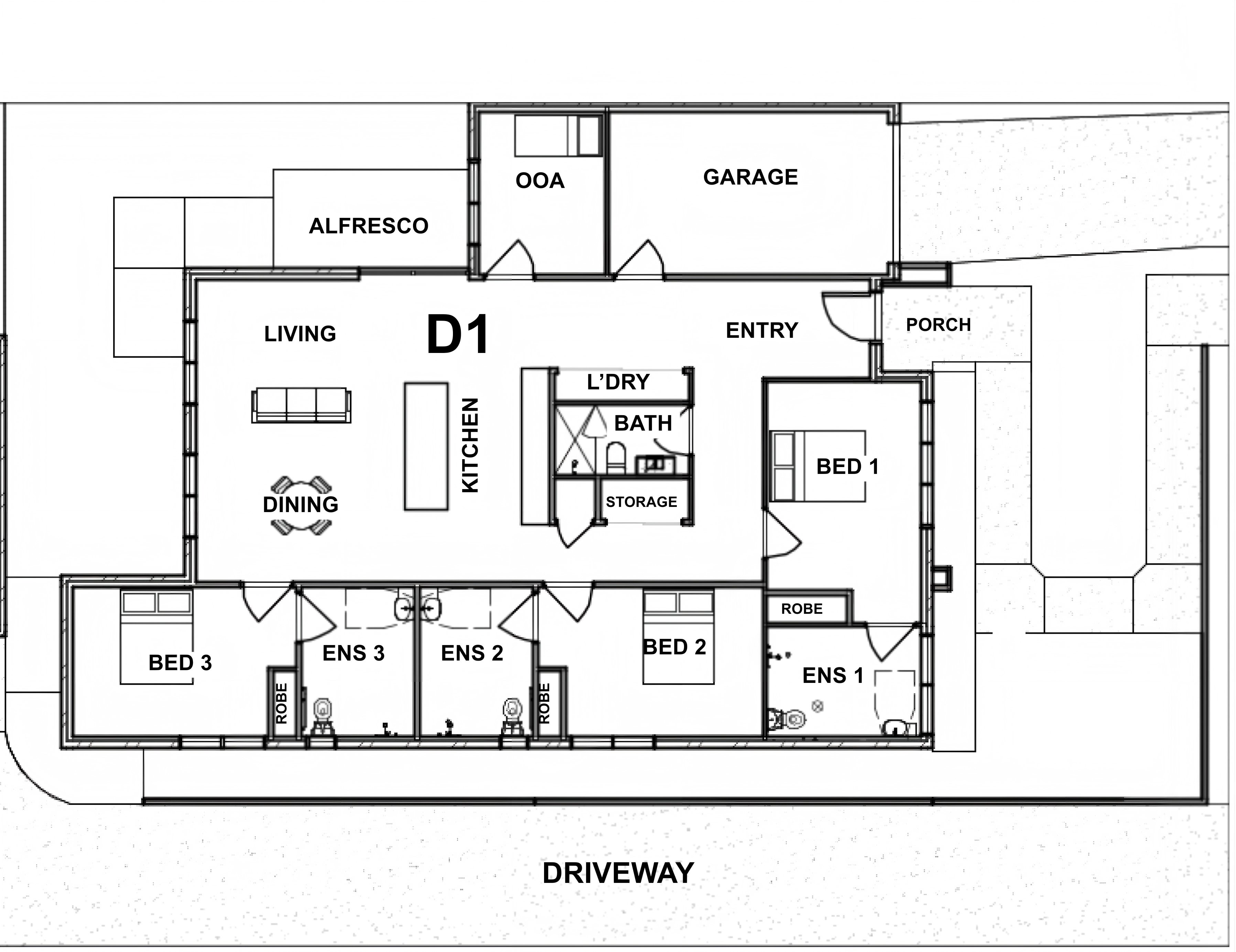
Secure a strategic asset in the high-demand NDIS sector at 147 Hull Road, Croydon. This purpose-built High Physical Support (HPS) residence offers a pristine, turnkey investment opportunity. Featuring three ensuite participant bedrooms plus an OOA room, the home is fully furnished and designed to rigorous standards to ensure consistent occupancy appeal. With specialized infrastructure including UPS backup and assistive tech readiness, this low-maintenance property is built for longevity. Perfectly positioned near amenities, it represents an exceptional opportunity for investors seeking a secure, purpose-driven addition to their portfolio. Lucrative Return: - $160,000 + GST annual rental income. - Secure Tenure: Signed 5+5 year lease agreement. - Growth Potential: Fixed 4% annual CPI rent increase. - Tenant pays all outgoings; Landlord is exempt from Land Tax. Property Features: - Rare Class 3 Classification: Far surpassing standard market offerings with premier fire safety compliance and build standards. - Three participant bedrooms, each featuring a private ensuite. - Dedicated Onsite Overnight Assistance (OOA) room to support 24-hour care models. - Built to NDIS High Physical Support standards with reinforced walls and height-adjustable benchtops. - Advanced infrastructure including UPS backup system and assistive technology readiness. - Durable, low-maintenance landscaping surrounding a secure outdoor courtyard. - Fully wheelchair-accessible layout ensuring long-term tenant suitability. - Provision for ceiling hoists to accommodate complex physical needs. Amenities Highlights: [Train Station] Mooroolbark Station - 2min drive (1.1km) [Shopping] Coles Mooroolbark - 4min drive (1.4km) [Shopping] Croydon Central - 5min drive (2.7km) [Shopping] Chirnside Park Shopping Centre - 8min drive (4.3km) [Park] Charles Allen Reserve - 5min walk (350m) [Park] Mooroolbark Bowls Club & Kiloran Park - 5min walk (550m) Zone School: Ruskin Park Primary School - 1.2km Yarra Hills Secondary College - 1.3km
- Project StatusUnder Construction
- Price Range$2,100,000 - 2,100,000
- Location Croydon
- TypeCommercial
- Total VolumeContact us
- Expected CompletionQ2 2026
Location
746 Burke Road , Camberwell , VIC 3141 . Australia
Address
147 Hull Road, Croydon, VIC 3136
Croydon,
Melbourne,
Australia
Enquiry
Wish to get a call back from our team? Fill in your details.
Or email us at [email protected]

